尚峰尚水

更新于2019-05-145浏览
这个场景是一个客厅的装修设计。吊顶和沙发背景墙都使用了深色的材料,地面上铺了黑色的地毯,地毯上放了一个灰色的茶几。客厅的左侧有一个餐厅,右侧有一个白色的储物柜。客厅的中央放了一张深色的三人沙发,沙发上放了四个颜色都为黄色、白色和灰色的抱枕。沙发上前方的茶几上摆放着一个黄色的盆栽和一个圆形的黑色花瓶,花瓶中插着黄色的花朵。此外,客厅中还放置了一些装饰品,比如一个银色的花瓶和一个圆形的黑色果盘,盘中放着黄色的水果。

小区:

尚峰尚水小区

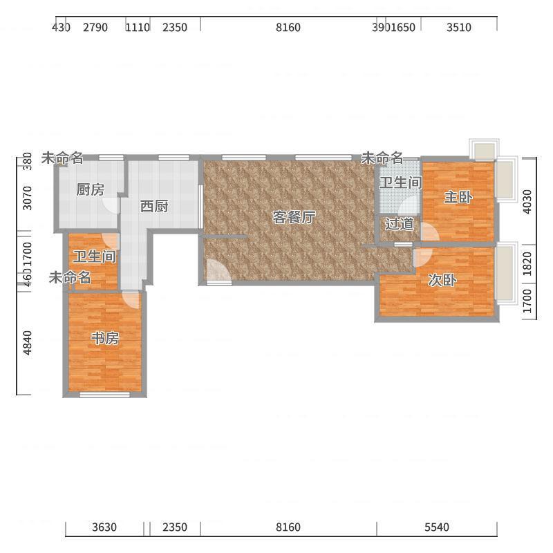
户型:3室2厅2卫1厨

面积:161 m2

标签:

新中式家装

本案是新中式风格,黑白灰的元素中式,天花黑色金属线条,电视背景墙是柜子式的,投影仪,空间规划有序,彰显品位,舒适,大气。
尚峰尚水
一层 · 
概览
设计师丨胡月平-尚峰尚水-户型图概览
一层 · 
客餐厅
模型清单
设计师丨胡月平-尚峰尚水一层客餐厅装修效果图第1张
设计师丨胡月平-尚峰尚水一层客餐厅装修效果图第2张
设计师丨胡月平-尚峰尚水一层客餐厅装修效果图第3张
设计师丨胡月平-尚峰尚水一层客餐厅装修效果图第4张
设计师丨胡月平-尚峰尚水一层客餐厅装修效果图第5张
设计师丨胡月平-尚峰尚水一层客餐厅装修效果图第1张设计师丨胡月平-尚峰尚水一层客餐厅装修效果图第2张设计师丨胡月平-尚峰尚水一层客餐厅装修效果图第3张设计师丨胡月平-尚峰尚水一层客餐厅装修效果图第4张设计师丨胡月平-尚峰尚水一层客餐厅装修效果图第5张
一层 · 
书房
模型清单
设计师丨胡月平-尚峰尚水一层书房装修效果图第1张
设计师丨胡月平-尚峰尚水一层书房装修效果图第2张
设计师丨胡月平-尚峰尚水一层书房装修效果图第3张
设计师丨胡月平-尚峰尚水一层书房装修效果图第4张
设计师丨胡月平-尚峰尚水一层书房装修效果图第5张3D全景 >
设计师丨胡月平-尚峰尚水一层书房装修效果图第1张设计师丨胡月平-尚峰尚水一层书房装修效果图第2张设计师丨胡月平-尚峰尚水一层书房装修效果图第3张设计师丨胡月平-尚峰尚水一层书房装修效果图第4张设计师丨胡月平-尚峰尚水一层书房装修效果图第5张
一层 · 
次卧
模型清单
设计师丨胡月平-尚峰尚水一层次卧装修效果图第1张
设计师丨胡月平-尚峰尚水一层次卧装修效果图第2张
设计师丨胡月平-尚峰尚水一层次卧装修效果图第3张
设计师丨胡月平-尚峰尚水一层次卧装修效果图第4张3D全景 >
设计师丨胡月平-尚峰尚水一层次卧装修效果图第1张设计师丨胡月平-尚峰尚水一层次卧装修效果图第2张设计师丨胡月平-尚峰尚水一层次卧装修效果图第3张设计师丨胡月平-尚峰尚水一层次卧装修效果图第4张
一层 · 
西厨
模型清单
设计师丨胡月平-尚峰尚水一层西厨装修效果图第1张
设计师丨胡月平-尚峰尚水一层西厨装修效果图第2张
设计师丨胡月平-尚峰尚水一层西厨装修效果图第3张3D全景 >
设计师丨胡月平-尚峰尚水一层西厨装修效果图第1张设计师丨胡月平-尚峰尚水一层西厨装修效果图第2张设计师丨胡月平-尚峰尚水一层西厨装修效果图第3张
一层 · 
主卧
模型清单
设计师丨胡月平-尚峰尚水一层主卧装修效果图第1张
设计师丨胡月平-尚峰尚水一层主卧装修效果图第2张
设计师丨胡月平-尚峰尚水一层主卧装修效果图第3张3D全景 >
设计师丨胡月平-尚峰尚水一层主卧装修效果图第1张设计师丨胡月平-尚峰尚水一层主卧装修效果图第2张设计师丨胡月平-尚峰尚水一层主卧装修效果图第3张
一层 · 
厨房
模型清单
设计师丨胡月平-尚峰尚水一层厨房装修效果图第1张
设计师丨胡月平-尚峰尚水一层厨房装修效果图第2张3D全景 >
设计师丨胡月平-尚峰尚水一层厨房装修效果图第3张3D全景 >
设计师丨胡月平-尚峰尚水一层厨房装修效果图第1张设计师丨胡月平-尚峰尚水一层厨房装修效果图第2张设计师丨胡月平-尚峰尚水一层厨房装修效果图第3张
一层 · 
卫生间
模型清单
设计师丨胡月平-尚峰尚水一层卫生间装修效果图第1张
设计师丨胡月平-尚峰尚水一层卫生间装修效果图第2张3D全景 >
设计师丨胡月平-尚峰尚水一层卫生间装修效果图第1张设计师丨胡月平-尚峰尚水一层卫生间装修效果图第2张
一层 · 
卫生间
模型清单
设计师丨胡月平-尚峰尚水一层卫生间装修效果图第1张
设计师丨胡月平-尚峰尚水一层卫生间装修效果图第2张3D全景 >
设计师丨胡月平-尚峰尚水一层卫生间装修效果图第1张设计师丨胡月平-尚峰尚水一层卫生间装修效果图第2张
一层 · 
过道
模型清单
设计师丨胡月平-尚峰尚水一层过道装修效果图第1张3D全景 >
173
4

大家对方案的印象