一、功能介绍
在布置工具中,通过拖放、编辑素材(如家具、橱柜等)完善平面设计方案,支持尺寸调整、旋转、图层管理等功能,帮助用户快速实现理想布局
二、面向用户
所有用户
三、操作步骤
1、放置素材
点击布置页面,选择需要的素材类型,点击需要的样式放置画布中,点击拖动至合适位置


2、修改尺寸
1)修改单个素材尺寸
选中素材,在右侧参数面板修改长宽高

2)修改组合尺寸
第一步:选择多个素材,点击浮窗中的组合按钮(多选时按住shift/⇧)

第二步:选中组合,在右侧参数面板修改长宽高,也可以在画布数值框中输入数值调整组合位置

3)修改L型/U型橱柜尺寸
第一步:在画布中点击L型/U型橱柜,鼠标点击直接拖动修改尺寸,也可以在右侧参数面板修改尺寸

第二步:双击可以修改橱柜上面单个水槽、灶台尺寸

3、旋转素材
选中素材,转动旋转标志旋转素材,也可以使用快捷键ctrl/⌘+r直接旋转角度

4、调整图层顺序与精准移动
1)图层顺位
在2D视角下,选中素材,在浮窗中点击图层顺位图标,根据需要调整图层顺序


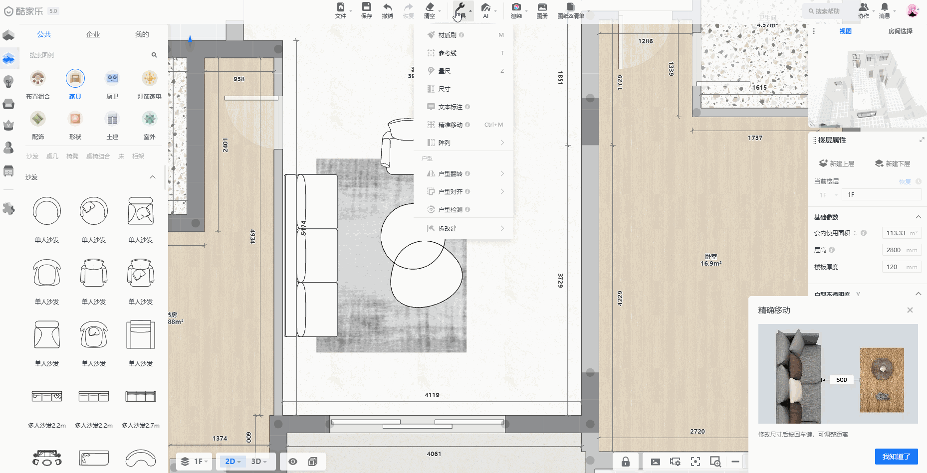
2)精准移动素材
在2D视角下,选中素材,点击浮窗中的精准移动,然后可吸附选中对象的端点/中点/边线,选择X或Y轴方向,直接拖动鼠标移动,也可以输入数值精准移动

- 具体操作演示视频教程可见如下:
5、一键替换/镜像/复制素材
1)一键替换素材
在2D视角下,选中素材,点击浮窗中的替换,然后在左侧素材栏里点击要替换的素材即可


2)镜像
选中素材,点击浮窗中的镜像图标,选择需要的翻转模式点击即可

3)一键复制素材
选中素材,点击浮窗中的复制按钮,点击即可复制所选素材

6、收藏与删除素材
1)一键收藏
第一步:选中素材,点击浮窗中的收藏

第二步:收藏后,点击左侧素材栏顶部的我的,选择收藏便可以看到之前收藏过的模型

2)一键删除
选中素材,点击浮窗中的删除按钮即可

7、隐藏显示/锁定/缩放素材
1)隐藏、显示素材
- 选中素材,点击浮窗中的隐藏,所选素材即可隐藏

- 点击底部工具栏的小眼睛图标,选择显示所有模型,隐藏的模型便显示出来

2)锁定素材
选中素材,点击浮窗中的锁定,锁定后不可以进行移动、删除、隐藏等操作


3)缩放素材
在3D视角下,选中素材,点击浮窗中的缩放,然后点击画布中缩放标识,直接点击拖动即可

8、测量距离
第一步:在2D视角下,点击顶部工具栏中的工具,选择量尺

第二步:点击模型两点之间的距离测量尺寸

