版本:V1
编写:孤木、令姜、奶昔
审核:尼采
编写日期:2021-12-20
1.设计场景
户型信息:广州市-锦绣天伦花园-93㎡

2.设计要求
- 1.需要尽可能多的储物空间;
- 2.需要设计调味拉篮及抽拉蓝;
- 3.未提及处可由设计师自由发挥;
3.业主信息
- 1.客户是新婚夫妻,白领,喜欢现代风格和免拉手柜体的橱柜样式,偏爱纯色木纹+纯色烤漆的设计;
- 2.请结合软硬装及以及上面信息,为客户出具一个完整的厨房方案;
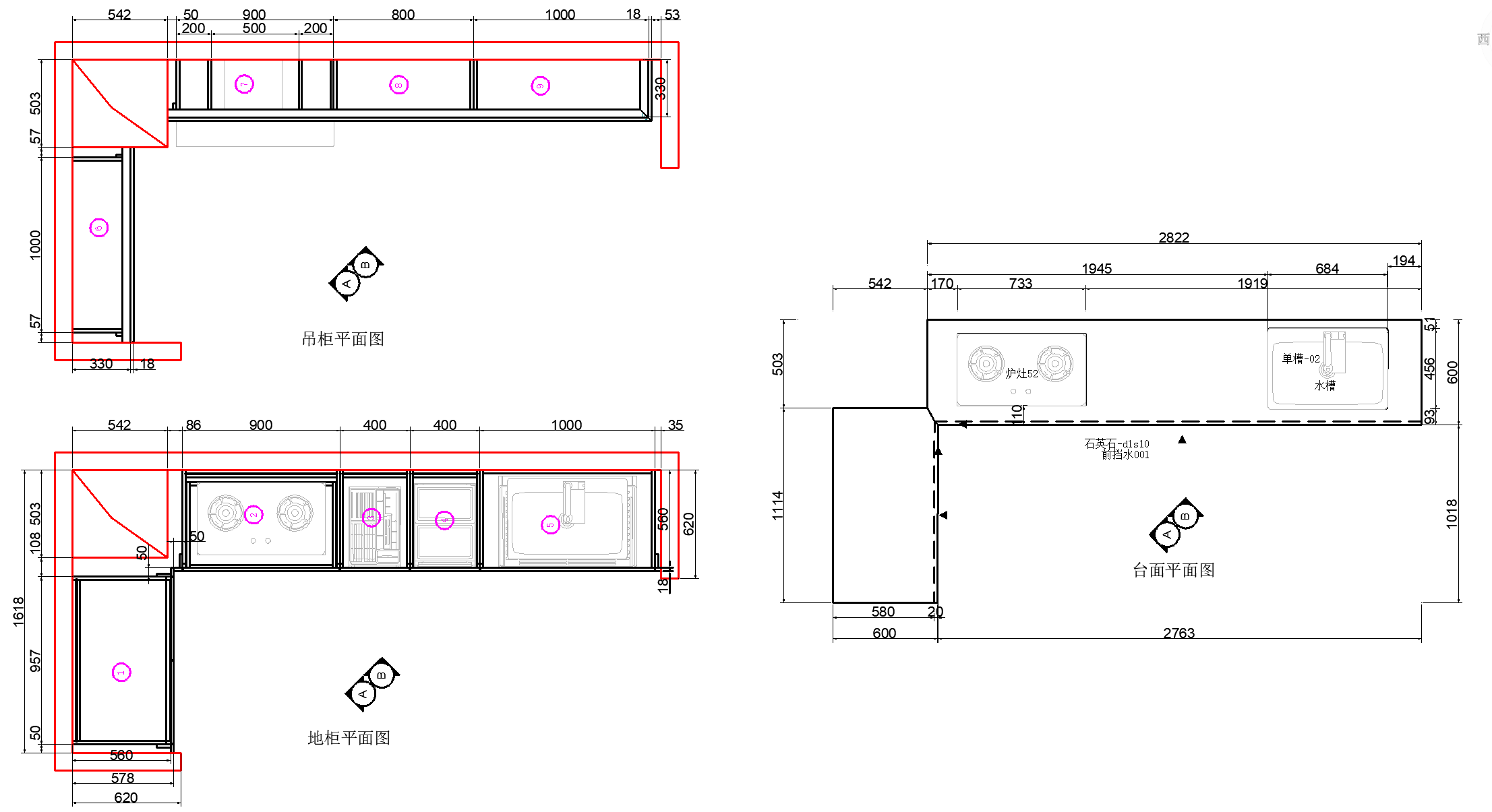
4.绘图尺寸


5.柜体结构说明
- 免拉地柜收口【左】:
- 1号柜:双门地柜-免拉:1块活层、5mm背板
- 免拉转角地柜收口【右】:
- 2号柜:双抽灶台地柜-免拉:上型L免拉,中C型免拉
- 3号柜:单抽拉蓝地柜-免拉:
- 4号柜:单抽垃圾桶地柜-免拉:
- 5号柜:上假抽下拉篮水槽地柜-免拉:上型L免拉,中C型免拉
- 免拉地柜收口【右】:
- 吊柜收口【左】:
- 6号柜:双门吊柜-免拉:1块活层、背板样式为:5mm背板【明码】;
- 吊柜收口【右】:
- 吊柜收口【左】:
- 7号柜:双门烟机吊柜:配反弹器、背板样式为:5mm背板【明码】;
- 8号柜:双门吊柜-免拉:1块活层、背板样式为:5mm背板【明码】;
- 9号柜:双门吊柜-免拉:1块活层、背板样式为:5mm背板【明码】;
- 吊柜见光板【右】:
- 顶收口:通过生成来实现;
6.测试内容
6.1常规挑战
- 1.地柜收口:可选常规收口或者免拉收口的结构;
- 2.地柜:背板样式替换、底板替换样式、层板替换样式、柜体结构可选"侧包顶底"或"顶底包侧";
- 3.地柜侧板结构:可选灶台开缺;
- 4.吊柜:顶板和底板可替换样式、层板可替换样式、柜体结构可选侧包顶底或顶底包侧;
- 5.添加脚线的方法:可通过生成或自由编辑方式:延伸参数尺寸的使用方法;
- 6.添加台面的方法:可通过生成和自由编辑方式进行:选择台面前挡水样式、后挡水样式、接驳等参数调整法:
- 7.添加电器:可通过生成方式进行:灶台、烟机样式选择和安装位置参数调整;
- 8.添加水盆和龙头的方法:可通过生成方式进行:样式选择、安装方式选择、安装位置参数调整;
6.1高阶挑战
- 1.地柜:可切角、可切管;
- 2.吊柜:可切角;
- 3.侧板:可以前后上下延伸;
- 4.顶底板:可以前后延伸、左右延伸(当柜体结构选“顶底包侧”时才能实现);
- 5.板件可以自由编辑:实现造型、挖洞等异型制作;